savaria v1504 wiring diagram

V1504 Owners Manual Part No. For low voltage control always use 18 AWG wires.


V1504 Vertical Platform Lift A Elevators Lifts

000690 06-m04-2010 Site Construction Details The V1504 needs a wall that supports a minimum of 472 lb 2100 N of pull out force at any bracket.

. - 032914 0100 PM. Savaria V1504 wiring diagram. Concord and Savaria merged a few years ago and Ive found that Concords tech staff is extremely helpful.

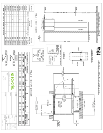
Architectural design drawings for the Savaria V-1504 vertical platform wheelchair lift including hoistway enclosed platform gate and Prestige model. Savaria V1504 electrical schematics 796 - For unit with controller board 242835. Savarias V1504 commercial platform lift comes with an extremely versatile design and can be configured and customized.

V1504 electrical schematics 796. To find more books about savaria lift model v1504 wiring you can use related keywords. 866-697-5438 Login or Sign Up.

V-1504 P INSTALLATION MANUAL 102003 -9-. 52 DOOR STRIKE ON DOORS PROVIDED BY SAVARIA The door can e opened manually using a ¼ inch allen key through theb front hole in the door see figure 40 This key is for emergency use. The Savaria V-1504 enclosed vertical platform lift offers reliable and flexible wheelchair accessibility for residential and commercial applications.

V1504 Packet 12 Volt drive wiring 961 Hands free Phone Instructions Pro Door Instructions Owners Manual. Inside the wiring panel was a schematic. Under no circumstances is.

000692 08-m08-2018 IMPORTANT Ensure that only an authorized Savaria Dealer installs and services the V1504 Vertical Platform Lift. Savaria V1504 Packet 12Volt. 000692 01-m03-2016 IMPORTANT Ensure that only an authorized Savaria Dealer installs and services the V1504 Vertical Platform Lift.

Design drawings for Savaria products. 000692 15-m07-2020 IMPORTANT - READ FIRST Ensure that only an authorized Savaria mechanic installs and services your Lift. Wiring hoistways before the installation refer to section RA 40.

We have a 4 station V1504 VPL which has lost 24V power to the call stations. SPECIFICATIONS SAVARIA MODEL V1504-STD 29 TERMINAL STOPPING DEVICES. V1504 Owners Manual Part No.

V1504-ALPE Enclosure Hydraulic Vertical Platform Lift Model. All wiring and electrical connections shall comply with applicable. V1504 Owners Manual Part No.

Home elevators vertical platform and inclined platform lifts LULA elevators doors and gates and stairlifts. The Savaria V-1504 unenclosed vertical platform lift offers wheelchair accessibility for home and ADA-compliant public use. Their number is 800-265-5416 or local 519-681-3311.

V1504 Planning Guide Part No. I will attach some photos of the electrical panel if necessary. What we humbly require is a wiring diagram for the V1504 that uses a three stop configuration.

2 Walker Drive Brampton ON L6T 5E1 Canada. Savaria Lift Model V1504 Wiring Savaria V1504 Wiring Diagram Savaria Vertical Lift Wiring Savaria. The colors and finishes shown are reproduced using.


V1504 Pg Type 4 Manualzz


Savaria V 1504 Vertical Platform Lift Access Solutions Inc


97 Concord Wiring Diagram Keyless Entry


Savaria V 1504 Vertical Platform Versatility For Any Application Pdf Elevator Door


Savaria Startseite Facebook


Savaria V1504 Shenandoah Elevator


Savaria V 1504 Vertical Platform Lift Challenge Specialties


Pwd Lift Eesi Elevators Inc Philippines


V 1504 Vertical Platform Lift Dave Bearson Const Enterprises Inc


Pwd Lift Eesi Elevators Inc Philippines


Savaria V 1504 Vertical Platform Lift Youtube


V 1504 Vertical Platform Lift Savaria Wheelchair Lift


Living Well Hme Savaria V 1504 Vertical Platform Lift


Indoor Wheelchair Lift Area Access


On Site Exhibition At Makuhari Jasis Webexpo 2022 2023 Application Information Website Japan Analytical Scientific Instruments Show Makuhari Messe International Exhibition Halls


Improvement Of Fine Soils Through Microbial Induced Calcite Precipitation Springerlink


Products Offered By Elevator Solutions Commercial And Residential Elevators Platform Lifts Dumbwaiters And Stairlifts

Iklan Atas Artikel

Iklan Tengah Artikel 1

Iklan Tengah Artikel 2

Iklan Bawah Artikel